Organisation Registration & Work Certificate

Trade Mark Registration Details

CA Letter

Title Clear Certificate

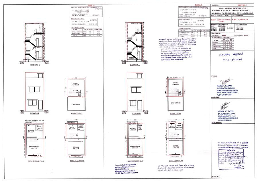
Plan pass Details

Bank Letters

PAN & TAN Details

7x12, 8A & 6 No Details

N A Order

 
 
Plan pass Details